
PAMÁTKOVÉ CENTRUM NAMÁTKOVÉ OCHRANY OBCHODNÍ CENTRUM BRNO
Adéla Vavříková
Předmětem zimního semestru Ateliéru architektury IV bylo zamyšlení se nad tématem architektonických Ikon skrze nedokončené projekty z rozličných historických epoch. Ze zadaných budov jsem si vybrala Obchodní centrum Brno – dům, jenž se ve 30. letech minulého století měl stát prvním evropským mrakodrapem z pera architekta Vladimíra Karfíka.
V rámci projektu se snažím snoubit dva fenomény – přebírám zadanou ikonu brněnského obchodního domu, která byla v 30. letech považována za devízu města – chlouba výškovou budovou, symbol bohatství, pokroku, průmyslové výroby nové doby. Snažím se ji aktualizovat skrzeva současné principy – přetavit zeitgeist kapitalismu první poloviny 20. století do dnešních dnů. Nedokončuji projekt, nýbrž jeho vize. Zkoumám otázku, co vše je třeba chránit na budově, jež statut kulturní památky ztratila a brněnská pobočka NPÚ o její ochranu již usilovat nehodlá. Hledám záchytné struktury, které zmírňují škody nedokonalých systémů. Nedokonalost je lidská a všudypřítomná – systémy nemusí být dokonalé, ale musí být dostatečně adaptabilní či připravené své nedokonalosti řešit.
Semestrální projekt vyústil v sepsání manifestu „dokončené vize”, která svým programem upozorňovala jak na politickou rovinu problému, tak též na principy dekonstrukce a znovuvyužívání prvků a materiálů. Součástí manifestu je též stručná historie stavební parcely, brněnské ikony, krátký životopis architekta Vladimíra Karfíka a představení kauzy pozdních zápisů.

ilustrace svážení prvků
„Myšlenka Památkového centra namátkové ochrany vznikla z přání vytvořit záchytné struktury pro budovy památkově chráněné i nechráněné, které zde předchozí společenská nastavení zanechala v neutěšeném stavu, či pro budovy, které přirozeně zestárly a dnes namísto dekonstrukce čelí celkové demolici.”

vizualizace výstavního prostoru

vizualizace kavárna
Výsledkem semestrálního navrhování byla šetrná rekonstrukce obchodního centra na depozitář stavebních a interiérových prvků. V parteru budovy se nachází výstavní a edukační prostor (společně s kavárnou otevřenou směrem k Malinovskému náměstí), který spravuje kancelář Památkového centra namátkové ochrany (PCNO). V 2. až 4. nadzemním podlaží je umístěn depozitář, do nějž se sváží prvky z demolicí a rekonstrukcí kterýchkoliv objektů. Prvky jsou následně posouzeny, dle použitelnosti a nutnosti opraveny, inventarizovány a buď předány k opravě či uloženy v depozitárních prostorách. Suterén je určen pro těžké prvky a stavební materiály, aby nedocházelo k nadměrnému zatěžování stávající konstrukce. V 5. podlaží se nachází kanceláře pro PCNO, ale též prostor pro ateliéry, jenž ve své praxi pracují s depozitními prvky. Dvě ustoupená patra jsou určená dílenskému provozu, kde dochází k renovaci „domovských prvků”. Dílny může pro opravu vlastních předmětů využívat též veřejnost.




skici principů
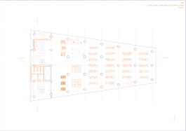
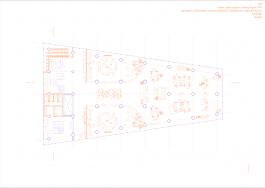
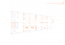
Výkresy jsou zhotovené v oranžové a fialové barvě. Fialová značí konstrukce a prvky stávající, zatímco oranžová představuje mé zásahy. Nedochází ke změně konstrukčního systému a narušení nosné konstrukce, odstranění fasády či změně vertikálních komunikací. Mění se náplň a interiérové uspořádání. Přibývají toalety a nespočet zachráněných předmětů.

půdorys 1NP

půdorys 1PP

půdorys 2NP

půdorys 3NP

půdorys 4NP

půdorys 5NP

půdorys 6NP

půdorys 7NP
Cílem manifestu bylo přetavit politicko-architektonické gesto do slov. Nabídnout text, myšlenku, strategii, jak se bránit současné kapitalistické tendenci nezastavitelně rychlého času, kdy na přehodnocení a šetrnější péči zkrátka není čas. Zdůraznit, co vše oním pozastavením získává společnost i každý z nás sám. Text není převratný ani příliš naléhavý. Spojuje myšlenky mnoha ateliérů, teoretiků a teoretiček architektury i architektů a architektek. Červenou nití zůstává Obchodní centrum Brno, které se stává předmětem manifestu a společně s kauzou pozdních zápisů přináší k fenoménu dekonstrukce novou perspektivu. Manifest je tak psán jakoby z pozice vedení smyšleného Památkového centra namátkové ochrany.
Během semestru jsem se v Brně setkala s památkářem a vedoucím metodického centra moderní architektury v Brně Petrem Svobodou a Michalem Doleželem, vedoucím oddělení Projekty veřejného prostoru a soutěže. Oběma bych ráda poděkovala za cenné poznámky a přiblížení problematiky kauzy pozdních zápisů.
„Náš depozitář je budovou, jejíž celek lze nalézt v jedné excelové tabulce. Blízká je nám podmíněná krása dle Kanta; líbí se nám prvky, které mohou mít účel – hledáme krásno a podporujeme ho novými prvky formou architektonické práce. Dekonstruujeme.”















PAMÁTKOVÉ CENTRUM NAMÁTKOVÉ OCHRANY OBCHODNÍ CENTRUM BRNO
Adéla Vavříková
Předmětem zimního semestru Ateliéru architektury IV bylo zamyšlení se nad tématem architektonických Ikon skrze nedokončené projekty z rozličných historických epoch. Ze zadaných budov jsem si vybrala Obchodní centrum Brno – dům, jenž se ve 30. letech minulého století měl stát prvním evropským mrakodrapem z pera architekta Vladimíra Karfíka.
V rámci projektu se snažím snoubit dva fenomény – přebírám zadanou ikonu brněnského obchodního domu, která byla v 30. letech považována za devízu města – chlouba výškovou budovou, symbol bohatství, pokroku, průmyslové výroby nové doby. Snažím se ji aktualizovat skrzeva současné principy – přetavit zeitgeist kapitalismu první poloviny 20. století do dnešních dnů. Nedokončuji projekt, nýbrž jeho vize. Zkoumám otázku, co vše je třeba chránit na budově, jež statut kulturní památky ztratila a brněnská pobočka NPÚ o její ochranu již usilovat nehodlá. Hledám záchytné struktury, které zmírňují škody nedokonalých systémů. Nedokonalost je lidská a všudypřítomná – systémy nemusí být dokonalé, ale musí být dostatečně adaptabilní či připravené své nedokonalosti řešit.
Semestrální projekt vyústil v sepsání manifestu „dokončené vize”, která svým programem upozorňovala jak na politickou rovinu problému, tak též na principy dekonstrukce a znovuvyužívání prvků a materiálů. Součástí manifestu je též stručná historie stavební parcely, brněnské ikony, krátký životopis architekta Vladimíra Karfíka a představení kauzy pozdních zápisů.

ilustrace svážení prvků
„Myšlenka Památkového centra namátkové ochrany vznikla z přání vytvořit záchytné struktury pro budovy památkově chráněné i nechráněné, které zde předchozí společenská nastavení zanechala v neutěšeném stavu, či pro budovy, které přirozeně zestárly a dnes namísto dekonstrukce čelí celkové demolici.”

vizualizace výstavního prostoru

vizualizace kavárna
Výsledkem semestrálního navrhování byla šetrná rekonstrukce obchodního centra na depozitář stavebních a interiérových prvků. V parteru budovy se nachází výstavní a edukační prostor (společně s kavárnou otevřenou směrem k Malinovskému náměstí), který spravuje kancelář Památkového centra namátkové ochrany (PCNO). V 2. až 4. nadzemním podlaží je umístěn depozitář, do nějž se sváží prvky z demolicí a rekonstrukcí kterýchkoliv objektů. Prvky jsou následně posouzeny, dle použitelnosti a nutnosti opraveny, inventarizovány a buď předány k opravě či uloženy v depozitárních prostorách. Suterén je určen pro těžké prvky a stavební materiály, aby nedocházelo k nadměrnému zatěžování stávající konstrukce. V 5. podlaží se nachází kanceláře pro PCNO, ale též prostor pro ateliéry, jenž ve své praxi pracují s depozitními prvky. Dvě ustoupená patra jsou určená dílenskému provozu, kde dochází k renovaci „domovských prvků”. Dílny může pro opravu vlastních předmětů využívat též veřejnost.




skici principů
Výkresy jsou zhotovené v oranžové a fialové barvě. Fialová značí konstrukce a prvky stávající, zatímco oranžová představuje mé zásahy. Nedochází ke změně konstrukčního systému a narušení nosné konstrukce, odstranění fasády či změně vertikálních komunikací. Mění se náplň a interiérové uspořádání. Přibývají toalety a nespočet zachráněných předmětů.

půdorys 1NP

půdorys 1PP

půdorys 2NP

půdorys 3NP

půdorys 4NP

půdorys 5NP

půdorys 6NP

půdorys 7NP
Cílem manifestu bylo přetavit politicko-architektonické gesto do slov. Nabídnout text, myšlenku, strategii, jak se bránit současné kapitalistické tendenci nezastavitelně rychlého času, kdy na přehodnocení a šetrnější péči zkrátka není čas. Zdůraznit, co vše oním pozastavením získává společnost i každý z nás sám. Text není převratný ani příliš naléhavý. Spojuje myšlenky mnoha ateliérů, teoretiků a teoretiček architektury i architektů a architektek. Červenou nití zůstává Obchodní centrum Brno, které se stává předmětem manifestu a společně s kauzou pozdních zápisů přináší k fenoménu dekonstrukce novou perspektivu. Manifest je tak psán jakoby z pozice vedení smyšleného Památkového centra namátkové ochrany.
Během semestru jsem se v Brně setkala s památkářem a vedoucím metodického centra moderní architektury v Brně Petrem Svobodou a Michalem Doleželem, vedoucím oddělení Projekty veřejného prostoru a soutěže. Oběma bych ráda poděkovala za cenné poznámky a přiblížení problematiky kauzy pozdních zápisů.
„Náš depozitář je budovou, jejíž celek lze nalézt v jedné excelové tabulce. Blízká je nám podmíněná krása dle Kanta; líbí se nám prvky, které mohou mít účel – hledáme krásno a podporujeme ho novými prvky formou architektonické práce. Dekonstruujeme.”















© 1885 — 2025 UMPRUM Vysoká škola uměleckoprůmyslová v Praze
umprum.cz